also würdete ich ne 12 V gebrauchen weil mit ner 6 V hab ichs schu versucht geht aber nicht und da hab ich mir nen netzstecker genommen hab da angeklemmt und da gings sehrgut und der hatt 9V und 300 mA
Beiträge von Tobias21
-
-
tach und zwar hab ich mir ne leiste mit 16 Led`s machen lassen und itze hab ich mal ne frage an welche batterie ich sie anschließe also was die batterie so an stärke braucht? (zweck bodenbeleuchtung)
danke im voraus mfg tobias -
wenn net einfach mal mitn fuß hinten gegendrücken dann hängt das ding auch wieder richtig

-
scrab macht hier nur schlaue sprüche und macht jeden voll zur sau am ende fährt der sack in holzroller nene kannste dir mal abgewöhnen hier stunk zu suchen
-
also bei mir mit vollgas geht garnichts meine muss warm laufen sonst komm ich nicht vom fleck und die geht aus und fürn zylinder is es denk ich auch net gut
-
der elektrodenabstand muss nicht immer 0,4 betragen wenn der funke sehr schwach is kann man auch 0,3 nehmen muss man einfach ausprobieren oder halt ne neue kerze mal nehmen
-
jo alles klar de karre rennt war ne schwimmereinstellung und zündkerze
danke für die guten hinweiße -
ja der gaser hab ich auch schu im verdacht die sau dr kerze is sehr sehr trocken aber ich hab kennen plan wie ich den schwimmer richtig einstellen muss will dann von meiner karre den mal reinsetzen
naja und de zündung is ja eigendlich net schwer die richtig einzustellen muss ja mit der nase im motor und die nase auf der platte übereinstimmen
du kannst mir das aber nicht erklären warum das mit den spulen so is also hab itze ne 6V spule drin sollte ich wohl mal ne 12 er reinsetzen? -
Also ich hab von ner freundin ne sr 50 roller und die karre will einfach nicht anspringen.
Der zündfunke kam auch noch nicht. Da hab ich gestern die ganzen scheiß kabel rausgemacht um einen neuaufbau zu machen.
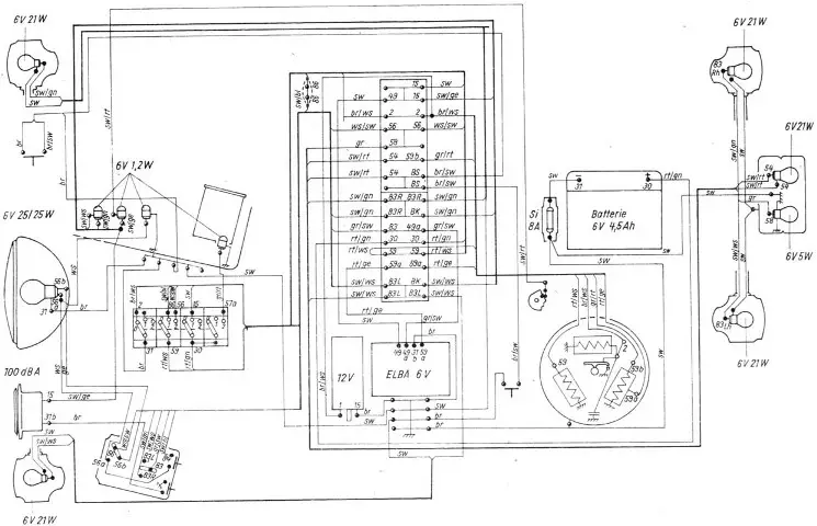
So da hab ich die wichtigsten kabel angeschlossen das sie erstmal anspringen muss der zünfunke kommt jetzt auch sehrgut aber ich bin jetzt verwirrt weil ich gestern mal 2 schaltpläne durchgeschaut habe vom unterbrecher und elektronik (ich habe nen unterbrecher) so und itze is mir mal aufgefallen das man wenn man eine 6V Grundplatte hat eine 12V zündspule reinsetzen muss und bei ner 12V elektronik ne 6V zündspule reinkommt so stehts auf meinen schaltplänen die ich ausn netz hab kann.
Kann mir bitte einer weiterhelfen warum das so verschieden ist und warum die karre net anspringt der rest ist alles ok -
kommt immer drauf an wie er läuft hatte auch nen 60 drauf und der is sehr gut mit meiem 16 orginalgaser gefahrn könnte sein das du mal ne größere hd reinbauen muss aber sonnst müsste er auch so laufen
-
also das passt alles alles dicht ich hab ne aufgebort auf 10 cm im herz in luffi und de zyndkerze is ne ganznormale weiß net was die fürn wärmegrad hat die bekommst du in jedem laden die kerze
-
ja sorry bloß ich denke mein motor is reine tuning und da schreibe ich das hier rein so was heust zu mager zu wenig benzin oder was ?